Pellicoro Residence

Santa Fe, NM

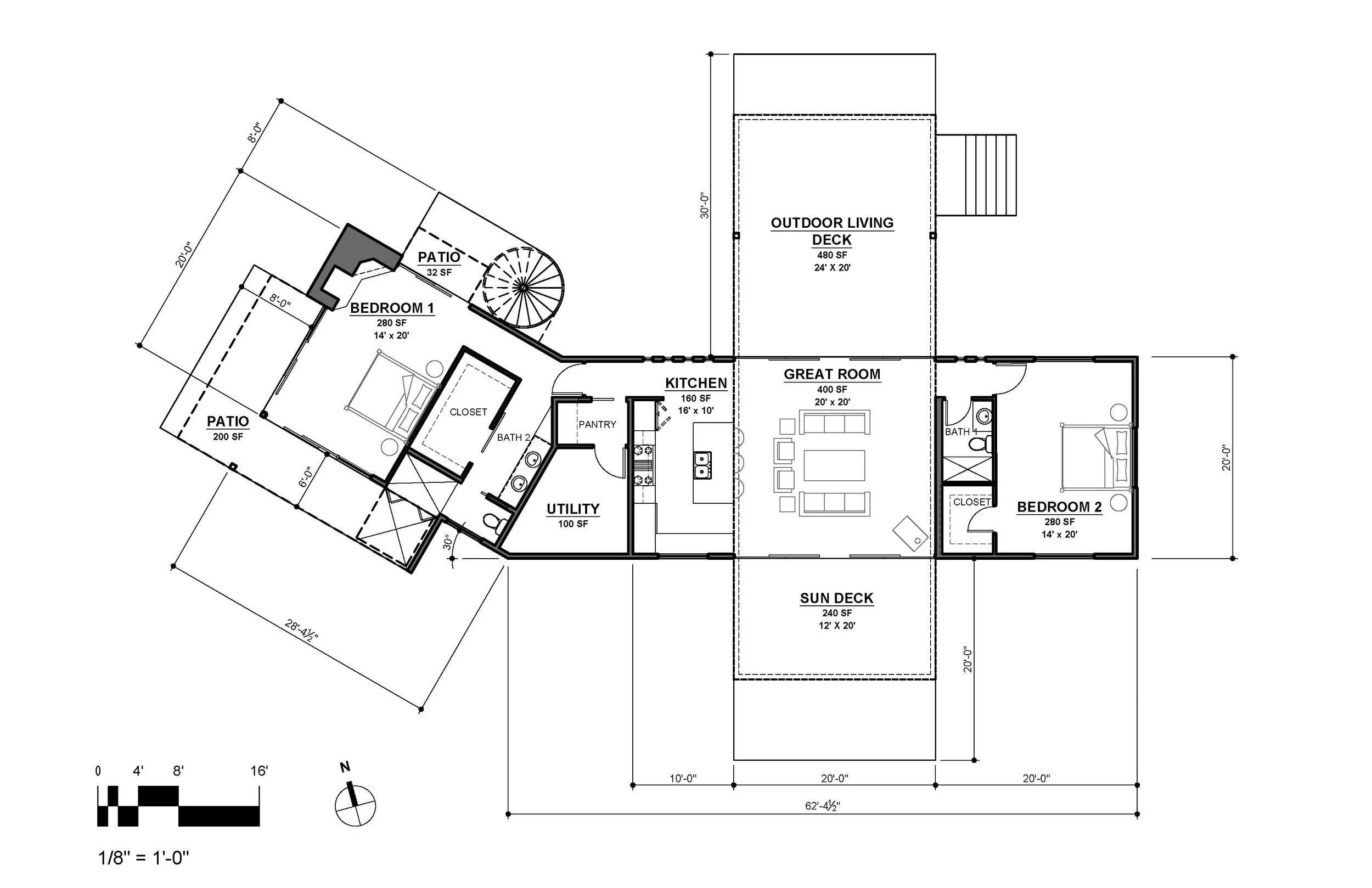
The Pellicoro Residence is located on top of a ridge overlooking the Galisteo Basin. The project consists of a main house and a studio. They are situated to take advantage of the stunning views surrounding the site. The great room utilizes large sliding glass doors and covered decks to show the connection to the site to the Santa Fe Mountains, and Galisteo Basin.

Site Plan

View of Santa Fe Mountains

Main House Floor Plan

 

Studio Floor Plan

Perspective Views