The BLOCK

Rio Rancho, NM

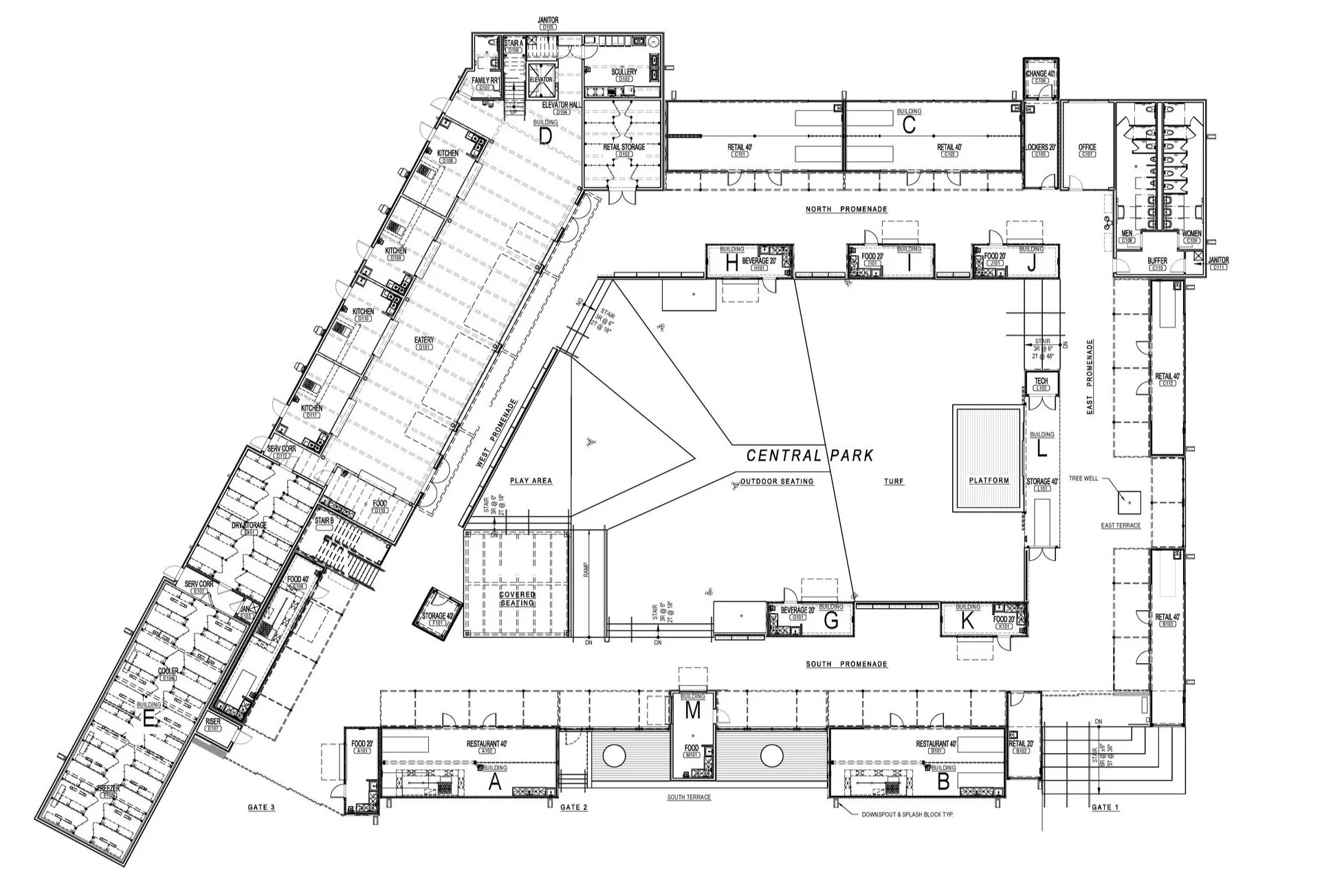
The Block is a Food / Beverage and Entertainment destination for Rio Rancho. The project utilizes re-purposed shipping containers organized around a landscaped courtyard. The Block will offer a variety of local food and beverage vendors, as well as small scale retail in an outdoor setting. The heart of the Block is dining and entertainment courtyard for music, theatrical and film events. A rooftop bar features views of the Sandia Mountains and the courtyard. Local mural artists will be engaged to provide colorful, thought-provoking accents on the shipping containers.

Site Plan

Level 1 Floor Plan

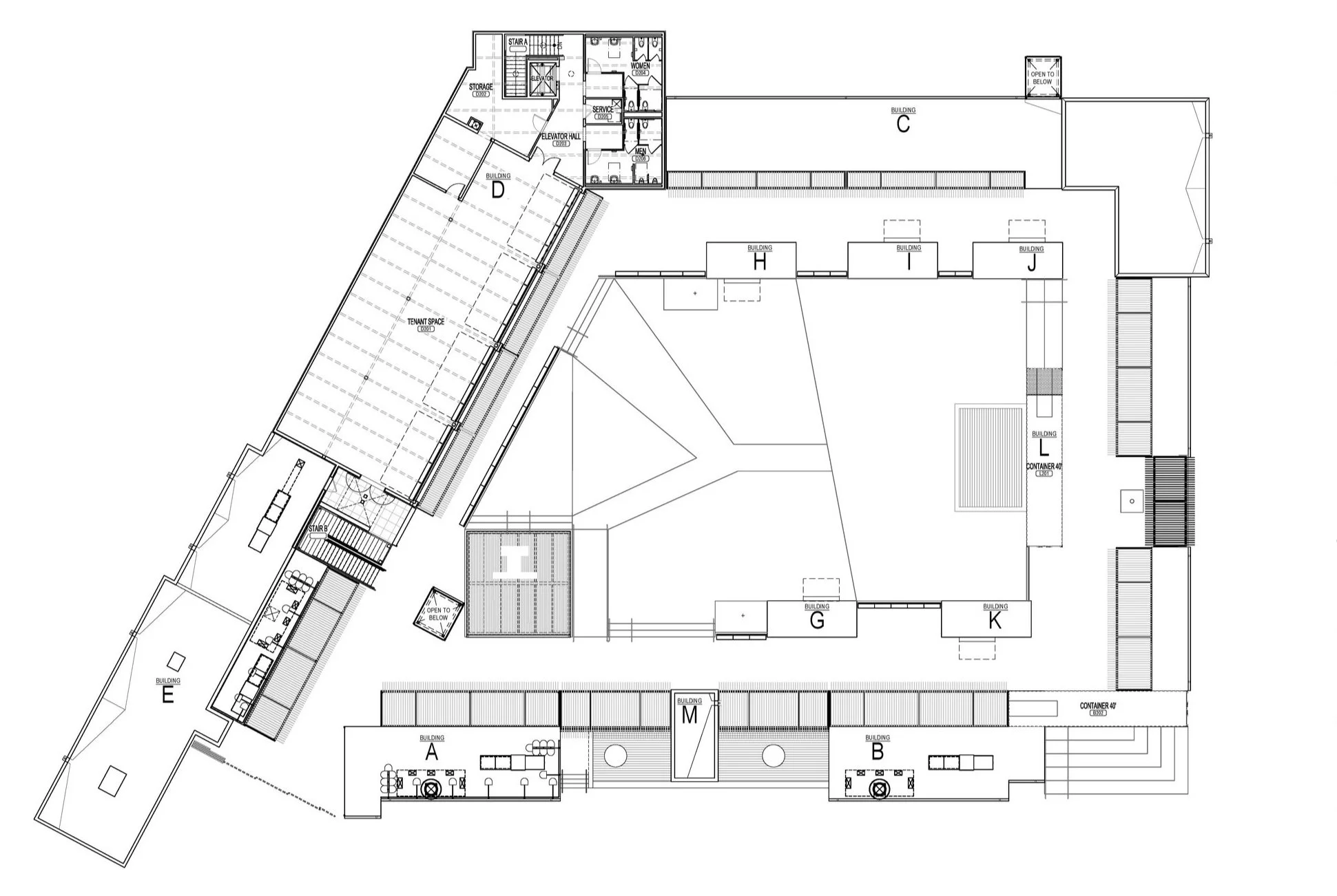
Level 2 Floor Plan